Yavor Nedelchev
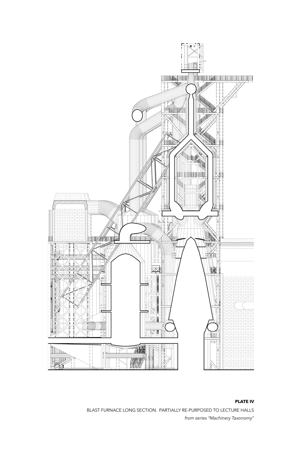
PLATE IV: BLAST FURNACE LONG SECTION. PARTIALLY RE-PURPOSED TO LECTURE HALLS
Orthographic Drawing
21 x 29.7 cm
Sold
